ALOHA Aqualand, Osterode am Harz
Modernisierung und Neubau Schwimmbad
VgV-Verfahren 2016
| Bauherr:in | Wirtschaftsbetrieb der Stadt Osterode | |
| Lage | Schwimmbadstraße 1, 37520 Osterode am Harz | |
| Leistung | LPH 1-9 | |
| Termine | Masterplan 2016, Fertigstellung 02/2025 | |
| Flächen | BGF 4.948 m² / BRI 26.000 m³ |
Fotos: AHM Architekten
Das in den Jahren 1969/70 errichtete und in den 1990‘er Jahren zu einem Freizeitbad erweiterte Hallen- und Freibad ALOHA war in die Jahre gekommen und entsprach in funktionaler und technischer Hinsicht nicht mehr den heutigen Anforderungen.
Auf Grundlage mehrerer Variantenstudien wurde die Entscheidung getroffen, unter Beibehalt der vorhandenen Sauna- und Wellnessanlage, einen kleineren flächeneffizienter Ersatzbau für die Schwimmhalle neu zu errichten.
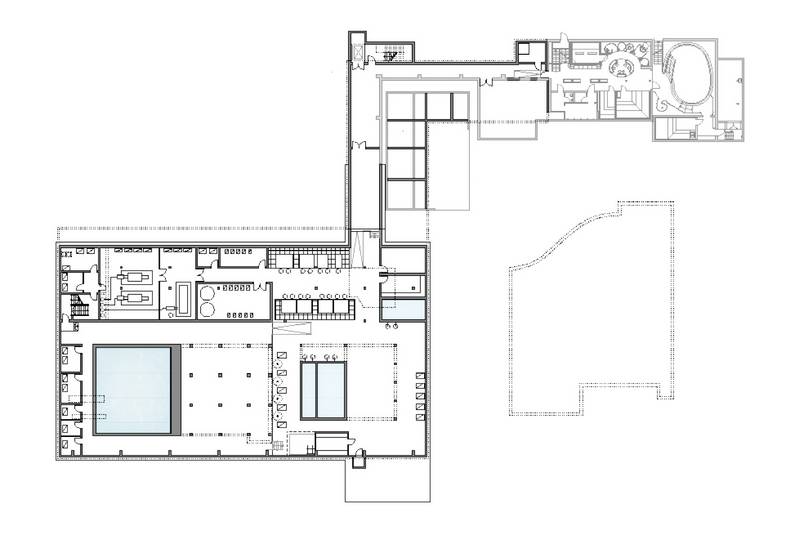
Die vorhandene Saunaanlage wurde modernisiert und über das neu geschaffene Foyer (Verbindungsbau) angebunden. In dem Verbindungsbau erhielt die Sauna neue Umkleiden, als Ersatz für die Umkleiden, die durch den Rückbau der Bestandsschwimmhalle entfallen waren. Mit der Neuorganisation wurde ein zeitlich und organisatorisch unabhängiger Betrieb der Sauna mit Übergangsmöglichkeit zwischen Bad und Sauna erreicht. Ebenfalls erhalten geblieben ist das Nichtschwimmerbecken des ehemaligen Freibades, welches in den Sommermonaten in den Badebetrieb mit einbezogen werden kann.
Das neue ALOHA-Bad definiert sich durch seine Lage im Grünzug entlang der Apenke als Bad im Park.
Beckenangebot Schwimmhalle
Schwimmerbecken 25m mit 5 Bahnen inkl. Einstiegstreppe mit 3m Sprungplattform und 1m Sprungbrett WT 1,40-3,50m WF 315m²
Nichtschwimmer/Lehr-/Kursschwimmbecken mit Wasserattraktion (Massagedüsen, Sprudelliegen, Nackendusche) auch für Freizeitnutzung WT 0,80-1,30m WF 130m²
Kleinkinderbecken mit einem Strand ausgebildet für die Wassergewöhnung sowie Kleinkindgeeignete Wasserattraktionen, Schiffchenkanal und Wasserigel , WT bis 30cm WF 30m²
Der Nichtschwimmerbecken im Außenbereich wurde saniert und mit einer neuen Badewassertechnik ausgestattet WT bis 1,35m, WF 552,5m²
Das Wasserangebot bedient damit die Zielgruppe eines familiengerechten Freizeitbades mit sportorientiertem Schwerpunkt auch für Schul- und Vereinssport (Schwimmen-/ Schwimmen lernen/ Kurse) und großzügigem Sauna-/Wellnessbereich.
Gestalt und Konstruktion
Ein wesentliches gestaltbildendes Element des neuen Bades ist die Lüftungsaufstellfläche auf dem Dach. Sie ist mit einer profilierten Gussglas-Fassade bekleidet und bildet als ‚Leuchtkörper' mit einer Akzentbeleuchtung, die die ‚wässrige' Farbe des Glases unterstützt, sowie dem ALOHA-Schriftzug ein Erkennungsmerkmal des Hauses. Das Erscheinungsbild des Gebäudes ist weiterhin durch den Höhenversatz des Dach-Volumens der Halle definiert. Der Höhenversatz entspricht dem Lichtraumprofil der dahinterliegenden Nutzung, indem der Springerbereich eine höhere Raumhöhe benötigt als der Nichtschwimmerbereich. Das Dachvolumen wird durch eine in die Fassadenebene heruntergezogener ‚Krempe' optisch vergrößert (auch um den Glasflächenanteil zu reduzieren) und erhält eine opake Bekleidung als vorgehängte hinterlüftete Fassade aus regionaltypischem Schiefer. Die unter dem Dachvolumen angeordnete Verglasung (Pfosten-Riegel-Fassade) folgt ebenfalls dem Versatz entsprechend dem Lichtraumprofil und erlaubt neben dem Ausblick ins Grüne, Einblicke von außen in das Badgeschehen. Ein Herantreten vom Vorplatz aus an die Hallenfassade ist explizit gewünscht und wird durch die Außenraumgestaltung unterstützt.
Die Schwimmhalle überspannen stützenfrei Stahl-Fachwerkträger, die einerseits auf Stahlstützen, andererseits auf der hallenbegrenzenden Stahlbetonwand auflagern.
Auf Nebenträgern aus Walzprofilen befinden sich Furnierschichtholz-Dachelemente für das Flachdach, mit einer abgehängten Akustikbekleidung aus Holzwolle-Leichtbauplatten.
Materialität
In der Architektur kommen im Wesentlichen die Farben der Materialien zur Wirkung,
wie Stahl (graualuminium), Glas, Schiefer (als vorgehängte hinterlüftete Fassade). Im Innenraum prägen naturfarbene Holzwolle-Leichtbauplatten die Decken- und Fassadenbekleidung. Im Kleinkinderbereich weist die Decke grün/blau Töne auf. Die Bodenfliesen bestehen aus grauem Feinsteinzeug in großformatigen Platten. Die Beckenfliesen sind im SB und NSB weiß, im Kleinkinderbecken grün/blau. Die wesentliche schwimmhallenbegrenzende Trennwand ist mint-türkisfarben mit Farbeinspregseln verfliest. Ein großer Videoscreen bietet einen zusätzlichen Unterhaltungs- und Informationswert für die über dem Schwimmerbecken angeordnete Aqua-Cross-Anlage (noch im Bau). Farbige Akzente setzen die in die Fliesen implementierten Piktogramme und das Beschilderungskonzept.
Energetische Aspekte, Wirtschaftlichkeit
Durch eine straffe und rationelle Organisation der Funktionen und die räumliche Anordnung wird ein sehr kompakter Baukörper erreicht, mit dem Ziel, die Flächeninanspruchnahme möglichst gering zu halten, und durch ein optimiertes Oberflächen-Volumen-Verhältnis die Voraussetzung für eine energieeffiziente Lösung zu schaffen.
Die Lüftungsaufstellfläche befindet sich auf dem Massivbauteil des Bades mit dem Umkleidebereich und dem Kleinkinderbecken der Schwimmhalle und ist dadurch vom Lastabtrag und Brandschutz her einfach gelöst, mit kurzen Wegen für die Lüftungskanäle. Aufwendige Leitungsführungen werden hier durch das Prinzip der Schichtlüftung „von oben nach unten“ vermieden.
Links / Veröffentlichung
Baunetz: ALOHA Aqualand Osterode am Harz
Artikel in Zeitschrift AB Archiv des Badewesen Ausgabe 11/2024 S.755-760, Planen im Bestand: Schichtlüftung für das ALOHA









